Спортивно-культурный комплекс Цзяньян в городе Чэнду, Китай

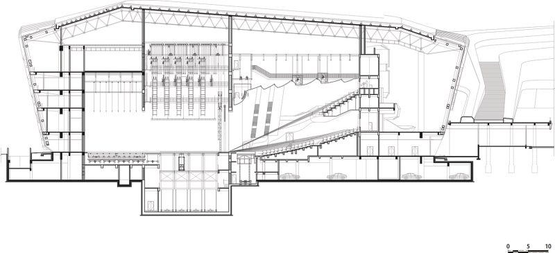
Спортивно-культурный комплекс Цзяньян — это крупномасштабное комплексное спортивное и культурное сооружение, построенное в Чэнду для проведения крупных международных мероприятий, таких как Всемирные игры и Универсиада. Общая площадь застройки составляет около 420 000 м2, и она объединяет «восемь площадок, три торговых центра, два парка, один жилой дом и один большой театр» в единый комплекс. Руководствуясь концепцией «города-парка», он формирует новую городскую достопримечательность, характеризующуюся многофункциональностью, экологической многослойностью и глубокой культурной глубиной.

Проект основан на концепции дизайна «трёхмерного парка». Многоуровневая система greenway встроена в городскую зелёную сеть, соединяясь с рекой Туоцзян и парком Аошань, образуя непрерывный природный ландшафт. «Двухконтурная» зелёная структура, состоящая из центральной зелёной зоны площадью 150 м2 и ландшафтного пояса в форме кольца площадью 80 м2, объединена радиальными коридорами в центральный спортивный парк площадью 450 м2, создавая открытое и общее зелёное пространство.

Гибкий дизайн позволяет проводить спортивные мероприятия во время игр, а после превращать их в коммерческие и культурные помещения, обеспечивая устойчивую работу.

Фасад здания включает в себя элементы нематериального культурного наследия провинции Сычуань, такие как «фонарики-веера» и «фарфор, сплетённый из бамбука», которые благодаря параметрическому дизайну преобразованы в современную интеллектуальную систему обшивки, обеспечивающую как защиту от солнца, так и естественное освещение.


Ландшафтный дизайн воссоздает образы лесных рощ Западной Сычуани («Линпань»), сочетая водные объекты со спортивными площадками, создавая пространственный опыт, богатый философским смыслом и региональными особенностями.


Спортивно-культурный комплекс Цзяньян не только проводит международные мероприятия, но и служит важным местом для повседневной культурной и спортивной жизни горожан. Он отражает видение Чэнду как «города-парка» и культурную уверенность в «очаровании Сычуани и элегантности Шу», являясь образцовой моделью, где функциональность и эстетика, мероприятия и повседневная жизнь идеально сочетаются.




